Баня-квадро, 4м
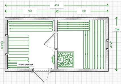
- Длина: 4 метра
- Ширина: 2 метра
- Высота: 2 метра
Доставка в готовом виде
Баня поставляется в готовом виде и устанавливается на участке с помощью крана-манипулятора — или собирается на месте всего за один день. Идеальный выбор для тех, кто ищет надёжную, энергоэффективную и быстро монтируемую баню.
Онлайн-калькулятор
Рассчитайте комплектацию и стоимость
Габаритные размеры
Условия поставки
Козырек
Окно в парилку
Окно в комнату отдыха
Расположение печи
Печи
Цвет наружного покрытия
Цвет кровли
Мебель
Баки
Вход
Дверь входная
Дверь в парную
Сваи
Каркас:
- Мини-Брус камерной сушки
- Обручи из нержавейки с системой стяжек
- Пропитка на Восковой основе внутри и снаружи 2 слоя
- Опоры под баню (Лапы)
- Фундаментные блоки в комплекте
Кровля:
- Подкровельный ковер
- Кровля - Финская черепица, цвет на выбор
Парилка:
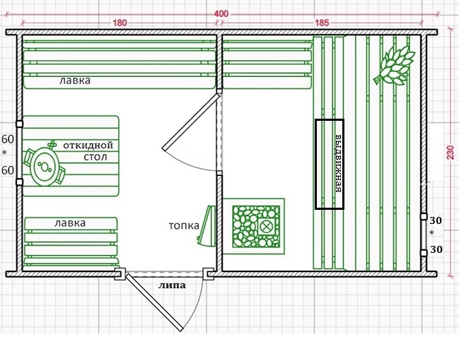
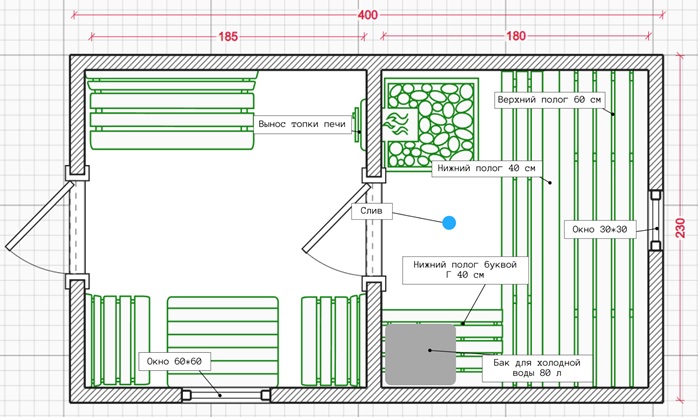
- Лавки из Липы прямого, углового, двухъярусного либо выкатного типа
- Прямой, ровный пол из-за присутствия напольных съемных, для просушки трапов
- Оборудованный слив для отвода воды
Печь+Дымоход:
- Печь-каменка на дровах + камни в комплекте
- Огнеупорные Финские плиты для защиты печи
- Бак для воды из нержавейки на 55л, кран для г. воды
- Утепленная сэндвич труба из нержавейки + дефлектор
Двери, Окна:
- Двери Комната отдыха: каркасная-Липа, утепленная-Металл или ПВХ со стеклом
- Двери Парилка: каркасная-Липа или Стекло Бронза/Сатин
- Окна для проветривания - стеклопакет из Липы или ПВХ
- Вентиляционные решетки для проветривания
- Освещение: Комплект электрики (плафоны, выключатель, проводка, гофра)
Информация готовится...
Выберите хотя бы один размер!






























